GL-P系列鍋爐爐排減速器 | ||||||||
產品簡介 | ||||||||
GL-P 系列鍋爐爐排減速器,采用 3K 結構漸開線齒輪行星傳動及浮動均載機構,具有功率分流等特點,配用電磁調速電機和控制器進行平滑無級調速,調速范圍廣,使用方便,性能穩定可靠,并裝有可靠的過載保護機構。 該系列減速器采用了優化設計,結構先進,緊湊,體積小,重量輕,效率高,壽命長,嗓音低,易維修。 | ||||||||
產品用途 | ||||||||
GL-P 系列鍋爐爐排減速器,主要用于各類燃煤、燃材等鍋爐爐排減速,是鍋爐爐排驅動裝置行業更新換代的理想產品。 | ||||||||
工作條件 | ||||||||
| ||||||||
型號意義 | ||||||||
|

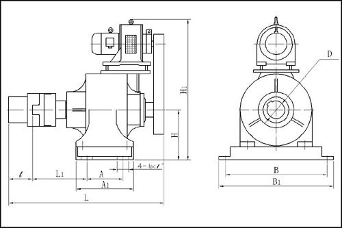
GL鍋爐爐排減速器安裝尺寸
鍋爐爐排 減速器型號 | H | A×B | A1×B1 | H1 | L | L1 | l | 4-b×lˊ | D | 匹配鍋爐噸 位(t/h) |
GL-5PA | 190 | 150×420 | 270×460 | 610 | 610 | 260 | 85 | 4-20×50 | 根據用戶 需要而定 | 2、4 |
GL-10P | 220 | 220×460 | 330×526 | 710 | 870 | 300 | 145 | 4-22×50 | 6 | |
GL-16P | 305 | 220×620 | 350×700 | 858 | 990 | 370 | 145 | 4-26×60 | 8、10 | |
GL-20P | 370 | 260×730 | 410×830 | 950 | 1080 | 410 | 145 | 4-26×80 | 15、20 | |
GL-30P | 370 | 260×730 | 410×830 | 950 | 1080 | 410 | 145 | 4-26×80 | 25 | |
GL-40P | 440 | 300×920 | 550×1000 | 1250 | 1130 | 490 | 200 | 4-32×100 | 35、40 | |
GL-100P | 470 | 400×1060 | 600×1200 | 1450 | 1360 | 630 | 220 | 4-32×100 | 65~100 |
注:以上安裝尺寸僅作參考,可以根據用戶需要而定!
鍋爐爐排 | GL-5P | GL-5PA | GL-10P | GL-16P | GL-20P | GL-30P | GL-40P | |||||||
總減速比 | 5278 | 7357 | 5564.7 | 5515 | 5682 | 5415.5 | 8037 | |||||||
輸出軸轉速范圍 r/min | 0.02368-0.2368 | 0.01631-0.1631 | 0.02246-0.2246 | 0.02267-0.2267 | 0.02200-0.2200 | 0.02308-0.2308 | 0.01555-0.1555 | |||||||
額定輸出扭矩 N.m | 5000 | 5500 | 7000 | 10000 | 20000 | 30000 | 45000 | |||||||
匹配鍋爐噸位 t/h( 參考 ) | 1 , 2 ,( 4 ) | 4 (特殊鍋爐) | 6 | 8 , 10 | 10 (重型爐排) 15 , 20 | 20 (重型爐排) 25 | 30 , 35 , 40 | |||||||
電磁調速電機 | 型號 | YCT90-4B | YCT112-4A | YCT112-4B | YCT132-4A | YCT132-4B | YCT160-4A | YCT160-4B | ||||||
功率 | 0.37 | 0.55 | 0.75 | 1.1 | 1.5 | 2.2 | 3 | |||||||
轉速 | 125-1250( 無級 ) (電機最佳轉速: 500-1200 ) | |||||||||||||
減速器自重 kg | 175 | 200 | 520 | 880 | 930 | 1050 | 1600 | |||||||



